Hallmark Kitchens

Call: 01732 782600

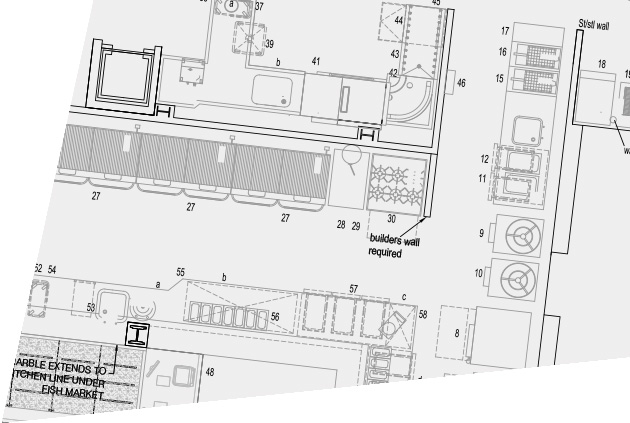
Catering Design

Published: 19/05/17

The redesign of a commercial kitchen is a great way to upscale an operation and bring your catering facility up to speed with current trends.

There are a number of benefits to redesign, whether it’s adhering to the latest food demands, updating inefficient equipment, or adding flexibility to an ever-growing kitchen. Commercial kitchen operations should always be open to change.

Before you begin your kitchen redesign, it’s important to consider a number of aspects, particularly access to your location. Details like whether a crane will be needed, if there are any lifts, or if the staircases are narrow, are all incredibly important when it comes to redesign.

Redesigning a kitchen will allow you to transform the way your kitchen operates. You will get the chance to catch up to the latest food trends, which will require new and updated equipment with different capabilities in order to meet popular demand. Improvements in technology should always be kept on top of to ensure that your establishment is kept as eco-friendly and efficient as possible, and these requirements can be met with a redesign.

Providing your facility with a ‘theatre’ cooking experience is also popular at the moment, and involves having the kitchen and cooking on show, which means certain design procedures are required to ensure this is done right.

It’s currently incredibly popular in the foodservice industry to include more imaginative ways of incorporating more colour and flavours, as well as presenting food in a more innovative way and using local and organic products that focus on seasonal ingredients.

Other current food trends also include artisanal, Vietnamese, Asian fusion, Middle Eastern, street food, charcoal grilling, and on-the-go-fast-yet-fresh.

Stephanie Carlyon, business development assistant at Hallmark Kitchens, said: “A redesign isn’t a lot different to a new design except you may have hereditary equipment that is still operational. The site may be restricted by available services, such as power or drainage, but these basics apply to a new design too. As for cost, well, it depends.”

Along with their other fantastic services, Hallmark Kitchens offers an incredibly professional redesign service to clients, which we are happy to discuss in more detail today.

Catering Design